Starter bygging av aktivitetshall våren 2026
På ekstraordinært årsmøte lørdag 14.2. i Lyngdal frikirke ble det vedtatt med overveldende flertall å bygge aktivitetshall med en kostnadsramme på 31 millioner kroner. Grunnarbeidet starter før sommeren.
PRESSEMELDING:
JUSTØYFAMILIENS BIBELCAMPING
På et ekstraordinært årsmøte lørdag 14.2. vedtok den tverrkirkelige foreningen Justøyfamiliens Bibelcamping med overveldende flertall å bygge aktivitetshall med en kostnadsramme på 31 millioner kroner. Grunnarbeidet starter før sommeren.
– Det er et kjempestort løft for en liten campingplass som kun har drift i fem uker om sommeren og drives på frivillig basis. Så nå trenger vi alle gode krefter som vil støtte oss og gi oss et håndslag slik at vi kommer godt i land økonomisk med dette prosjektet, sier styreleder Thore Aas.
Han er glad for at flere års arbeid med planer om hall, nå gir resultater.
Anbudsrunden er tatt og kontraktene er klar til signering. Grunnarbeidet vil bli ferdig i vår og rett over sommeren starter byggingen.
Aas tror at gode besøkstall og folk som setter pris på arbeidet en gjør på bibelcampingen vil gi grunnlag for å betjene det store lånet som har en ramme på rundt 25 millioner kroner.
– For mange er bibelcampingen en oase i Sommer-Norge. Her får de ferie og forkynnelse og mange ungdommer har sommerjobb her. Campingen har betydd mye positivt for utrolig mange i årene som har vært, og det vil den gjøre i lang tid framover. Bygging av hall er også for å legge campingdriften til rette for nye generasjoner, understreker Aas.
10 MILLIONER MER
For to år siden ble det vedtatt på ekstraordinært årsmøte å bygge en hall med en kostnadsramme på 22 millioner. Mange syntes det da var et stort løft. Ved nøyere prosjektering viste det seg at denne rammen var altfor liten.
Likevel var det et overveldende flertall som sa ja til å sette i gang bygging - allerede denne våren - med en utvidet ramme.
I løpet av de to foregående årene har den tverrkirkelige foreningen klart å samle inn 3,75 millioner i egenkapital.
God drift og iherdig dugnads-innsats av frivillige har gitt et godt overskudd de senere årene. Det har gjort at en på 10 år har klart å nedbetale nær 7 millioner kroner på de 10 millionene en måtte ta opp i lån da en kjøpte grunnen campingen står på. Tidligere ble denne leid.
LØSER UTFORDRINGER MED LYD
Noen hyttenaboer har i årevis klaget på lyd fra møtene i teltet. Det hele kunne endt med at camping måtte legge ned virksomheten. Løsningen ble til slutt at campingen fikk lov til å drive videre under strenge begrensninger på lydstyrke og lovnad om å løse problemene med å bygge en hall.
Det er hovedgrunnen til at en gjør det store løftet til 31 millioner kroner. Men i tillegg begynner det store teltet å bli slitt og det krever også en stor dugnads-innsats for å ta det opp og ned hver sommer. Det nye campingområdet som har blitt tilrettelagt de senere årene har også behov for et sanitæranlegg i nærheten.
KAFE, SANITÆRANLEGG OG MØTESAL
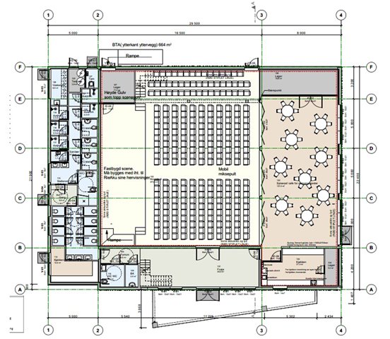
Hallen er på totalt 664 kvadratmeter i grunnflate og vil inneholde kafédel, sanitæranlegg og møtesal. Møtesalen vil erstatte dagens møtetelt.
Møtesalen sammen med kafédel vil ha rundt 550 sitteplasser. Det er mindre enn dagens telt, men ved stormøter vil en forsøke å bruke overføring til 2.etasje over butikken eller finne andre løsninger.
Møtesalen er prosjektert med ekstra tykke vegger som gir god lyddemping.
Bygget er utformet i samme stil som det eksisterende butikkbygget og glir fint inn i naturen.
Den er planlagt å reises der hvor møteteltet står i dag.
EN OASE I SOMMERNORGE
Justøyfamiliens bibelcamping er Nordens eldste bibelcamping og feiret for to år siden 60 år.
Hver sommer tar campingen imot flere tusen barn og voksne som vil ha et kristent innhold i ferien sin.
– Vi vet vi har misjonsvenner i ryggen når vi tar dette løftet og vi tror at de ser vårt behov for å løse lydkonflikten og for et bedre sanitæranlegg. Derfor våger vi å gå i tro på dette prosjektet, sier Aas.
Vedlagt bildefiler: Styreleder Thore Aas og tegning av ny hall
For ytterligere informasjon, ta kontakt med:
Thore Aas
styreleder i Justøyfamiliens bibelcamping
tlf.: 982 68 499
thore.aas@outlook.com
Leif Arne Grødem
Leder for byggekomiteen
tlf.: 971 51 238
leif.arne.grodem@gmail.com
Justøyfamiliens bibelcamping (JFC) er en selvstendig og selveiende evangelisk virksomhet med en økumenisk profil hvor det kristne søskenfelleskapet er viktigere enn organisasjonstilhørighet. Bibelcampingen startet opp i 1964 og feirer i 2024 60-års jubileum. Mange tusen barn og voksne gjester campingen hvert år i løpet av de fem ukene den er i drift om sommeren. I 2014 kjøpte Justøyfamiliens bibelcamping grunnen til campingen, noe de tidligere leide.


